Version 23 | $4,290/yr
Reach an Engineer
Connect with the Experts.
We have the engineering staff ready to assist you.
- Modeling
- Loading
- Analysis
- Design
- Results & Reporting
- Integration & BIM
ADAPT-Builder includes the ability to model natively or to quickly transform an imported DXF/DWG file to modeled elements. The modeling features allow for easy creation of complex geometries including stepped slabs, sloped columns, elevator pits, ramps and more. ADAPT-Builder's Colorize feature allows you to colorize components based on properties for easy verification of input properties for the modeled components.
Features:
-
Automatic Connection of Supports
-
Ramp Modeling
-
Stepped Slabs
-
Properties Grid
-
Sloped Columns
-
Wall Openings
-
Post-Tensioning
ADAPT-Builder allows the application of gravity and lateral loading, including tools to quickly apply these loads to the model. Along with the ability to include these loads in a FEM analysis, Builder also includes the option to run a Tributary Load Takedown using our patented Tributary Load Manager.
Features
-
Load Combination Generator
-
Auto Calculation of Long-Term Factors
-
Live Load Patterning
-
Live Load Reduction
-
Import from XLS
ADAPT-Builder contains the various tools for performing a full 3D Finite Element Analysis and viewing the analysis results for a single-level or the entire model at once. Create and modify the finite element mesh, manage stored reactions, assign stiffness modifiers, and more. In addition ADAPT-Builder can analyze models for P-Delta, Vibration, and Cracked Deflections.
Features
-
Vibration Analysis
-
Single & Multi-level Analysis
-
P-delta Analysis
-
Cracked Deflection
-
Advanced Meshing tools
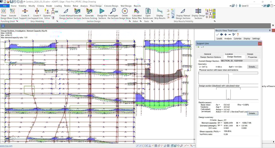
ADAPT-Builder includes the ability to design and investigate conventionally reinforced, post-tensioned, or hybrid two-way and one-way slabs, beams, foundations, as well as conventionally reinforced columns and walls. Punching shear design can also be performed including both drop caps and drop panels. Slab design is performed utilizing Support Lines and Design Sections which allow users to view various results including stresses, demands, and capacities to aid in the design or investigation of these elements.
Features
- Slab Design
- Foundation Design
- Column Design
- Wall Design
- Punching Shear Design
- Beam Design
ADAPT-Builder includes the ability to review analysis results through tabular and graphical reports as well as graphically in the model space. Generate fully compiled reports including default tabular and graphical reports, as well as screenshots of graphical results. The Colorize feature can also be used to view model results in an easily interpreted view, such as applied loading and column design results. Detailed calculation reports are also available for minimum reinforcement, column design, and wall design.
Features
-
Tabular and graphical results
-
Results shown in the model
-
Compiled reports with screenshots
-
Colorized result views
-
Detailed design calculations
ADAPT-Builder includes many options for integration with other programs and between ADAPT-Builder models. Share level definitions, component geometry, material properties, loading, etc. between ADAPT-Builder models using the INP file. Integrate full Revit models to and from ADAPT-Builder. Quickly create geometry by importing a DWG/DXF file. Import loads into ADAPT-Builder from an Excel file or directly import RISA-3D reactions.
Features:
-
RISA-3D Integration
-
Revit Integration
-
DXF/DWG Import
CUSTOMER SPOTLIGHT
"Using ADAPT-Builder to calculate deflections precisely while taking into account the load sharing effects at the cantilevered slabs was absolutely critical to the design"
— Michael Hopper P.E. | LERA Consulting Engineers
ADAPT-Builder Support Resources
Frequently Asked Questions
Can’t find any answer for your question?
Ask our
Customer Support
ADAPT-Builder is a comprehensive analysis and design platform for post-tensioned and reinforced concrete structures, including slabs, beams, and foundations.
Yes, ADAPT-Builder supports both post-tensioned (PT) and reinforced concrete (RC) design in one unified environment.
ADAPT-Builder integrates with RISA-3D to exchange geometry and loads, streamlining analysis of lateral and gravity systems.
Yes, it’s widely used for multi-level and podium-style buildings, enabling efficient modeling of slabs, columns, and walls.
ADAPT-Builder supports international design codes, including ACI 318, Eurocode 2, and AS 3600 for global project flexibility.
No FAQs found
Try adjusting your search terms or clear the search

